Cargando...
Mauiki
BUY/FOR SALE RENTAL HOLIDAY RENTAL
Language
Español Deutsch Français Italiano Dansk Nederlands Português Čeština русский 中國的


Riviera Del Sol, Marbella, Málaga

Plot for sale
Plot for sale in Riviera Del Sol, Marbella, Málaga.
<
>
Print sign
1.870.000€
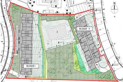
Land in Riviera del Sol with the possibility of developing 64 apartments with 2 and 3 bedrooms, each one with its own storage room and parking space. Buildable area of 7.080 m2 for residential use, compatible with hotel use. Construction license granted in 2012 and expired. Preliminary project for two residential blocks with 7.017 m2 built above ground. Transaction subject to VAT (21%).

Photos

Contact us

Information on property

Please, complete the information in this form to send your request

For

Subject

Message

Name

Phone number

Email

Reference



Security code



Professionals


How to advertise
Contact us

Privacy policy