Cargando...
Mauiki
BUY/FOR SALE RENTAL HOLIDAY RENTAL
Language
Español Deutsch Français Italiano Dansk Nederlands Português Čeština русский 中國的


Alhaurín el Grande, Málaga

Plot for sale
Plot for sale in Alhaurín el Grande, Málaga.
<
>
Print sign
49.000€
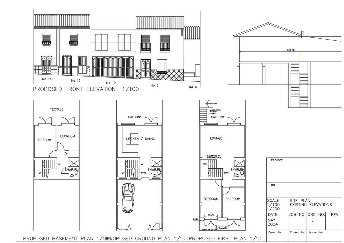
Located on a peaceful street in the vibrant town of Alhaurín el Grande, this prime urban plot presents a fantastic opportunity to build your dream home in an unbeatable location. Just a short stroll from charming cafés, boutique shops, and some of the area's finest restaurants, you'll enjoy the perfect balance of tranquillity and lively town life.

With the potential to construct a stylish two-story home complete with a basement and a stunning roof terrace, this plot offers endless possibilities. A preliminary design is available to spark your imagination, showcasing what could be your future residence in this sought-after Andalusian gem.

Seize this rare chance to create your perfect home in a thriving community with all amenities at your fingertips!

Photos

Contact us

Information on property

Please, complete the information in this form to send your request

For

Subject

Message

Name

Phone number

Email

Reference



Security code



Professionals


How to advertise
Contact us

Privacy policy