Cargando...
Mauiki
BUY/FOR SALE RENTAL HOLIDAY RENTAL
Language
Español Deutsch Français Italiano Dansk Nederlands Português Čeština русский 中國的


Estepona, Málaga

House for sale
House for sale in Estepona, Málaga.
<
>
Print sign
799.000€
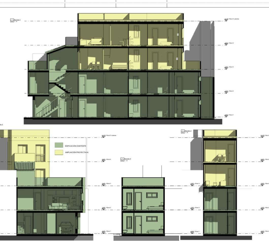
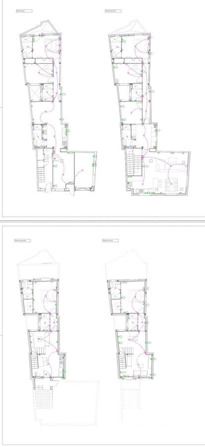
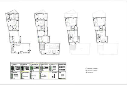
Fantastic opportunity to renovate in one of Estepona's most central areas, on a 122 m2 plot with a current 250 m2 building distributed across the ground, first, and second floors, and the possibility of adding another floor.
A permit is in place to add an attic level, which would bring the total to four levels. A detailed project report is available.

The current layout is as follows:
- Ground Floor (85 m2): spacious living room, four bedrooms, and two bathrooms. Spaces with abundant natural light and excellent potential for redistribution to suit your needs.

- First Floor (92 m2): living room, four bedrooms, and two bathrooms, offering great versatility to create spacious rooms or even two separate units.

- Second Floor: features two large terraces with incredible potential:
• 54 m2 terrace ideal for a chill-out area, private garden, or pool/solarium.

• 33 m2 terrace, perfect for an outdoor dining area or reading nook with views.

Project and permit for the renovation and expansion of 3 dwellings!

This property stands out for its large built area, its versatility, and the possibility of adding another floor, making it an exceptional investment for a family residential project, development, or holiday rental.

Don't miss this opportunity!
Size:
250m²
Plot size:
112m²
Bedroom/s:
8
Heating:
Centralized
No. of floors:
2
Condition:
Excellent

Photos

Contact us

Information on property

Please, complete the information in this form to send your request

For

Subject

Message

Name

Phone number

Email

Reference



Security code



Professionals


How to advertise
Contact us

Privacy policy